Keri Williams | Country Corners
Phone
706.964.6470
Email

519 Mulberry Circle, Jasper

MLS Photo Gallery
424700 Jasper Residential
424700  Residential 424700  Residential 424700 Jasper Residential 424700 Jasper Residential 424700 Jasper Residential 424700 Jasper Residential 424700 Jasper Residential
View Gallery
Listing Information
List Price:
$519,900
MLS #:
424700
Property Type:
Residential
Style:
Ranch,Traditional,Craftsman
Bedrooms:
3
Bathrooms:
2
Acreage:
3.51+/-
View:
Trees/Woods
Status:
Active
Share this listing! Facebook ShareTwitter ShareGoogle ShareLinked In Share
Contact Keri Conner
Phone:
706.964.6470
Toll Free:
888.253.6599
Email:
Address:
224 Blue Ridge Dr.
McCaysville, GA 30555
Mail Address:
PO Box 760
Blue Ridge, GA 30513
Desciption
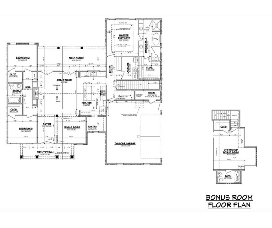
This breathtaking to-be-built custom ranch home on 3.51 acres invites you in with its elegant craftsmanship and luxurious details. Located in the private community of Salacoa Highland, just a short drive from historic downtown Jasper, and constructed by a renowned local builder celebrated for high-end finishes, the home boasts the beautiful open-concept Abbie floor plan, where sunlight pours through expansive windows, illuminating the open-concept great room, dining area, and gourmet kitchen adorned with gleaming granite countertops and soaring ceilings. The main-level master suite offers a serene retreat, while two additional bedrooms and two stylish bathrooms provide comfort and space for family or guests. With a spacious two-car garage, full unfinished basement, and opportunities to personalize details, this is more than a house—it's a dream home waiting to become your own! Schedule a new construction meeting to discuss customization options including multiple floorplan upgrade options, and you can also specify to add the optional upstairs Bonus Bedroom Room (can be quoted on request).
519 Mulberry Circle, Jasper GA 30143

Style:
Ranch,Traditional,Craftsman
Address:
519 Mulberry Circle
County:
Ar 3 Pickens, Sub 3
City
Jasper
State:
GA
Zip Code:
30143
Acreage:
3.51
Views:
Trees/Woods
Frontage:
Road
Terrain:
Rolling Slope
Road:
Paved
Driveway:
Road
Construction:
Frame
Roof:
Shingle
Year Built:
2026
Water:
Well
Total Bedrooms:
3
Main Floor Beds:
3
Upper Floor Beds:
0
Lower Floor Beds:
0
Baths:
2 424700
Status:
Active
Foreclosure:
0
Sewer:
Septic Tank
Interior
Pantry,Ceiling Fan(s),Cathedral Ceiling(s)
Heating:
Central
Floors:
Luxury Vinyl
Windows:
Insulated Windows
Appliances:
Refrigerator,Range,Microwave,Washer,Dryer
Laundry:
Main Level
Keri WilliamsKeri Conner
- Owner / Broker
Cell: 706.455.0488
Office: 706.964.6470
Toll Free: 888.253.6599
info@realestategeorgiamountains.com

Country Corners Georgia Mountain Property

MLS/IDX data provided by the Northeast Georgia Board of Realtors
Listing provided through broker reciprocity by Keller Williams Elevate
Property information deemed reliable but not guaranteed and should be verified.

Mortgage Payment Calculator


Please do not use commas. The accuracy and applicability of the calculator below are not guaranteed.
Interest Rate:
Loan Amount:
Loan Term (in years):
Annual Taxes:
Annual Insurance:

Below is Your Monthly Payment

Principal & Interest:
Tax:
Insurance:
Scottsdale Web Design Total Monthly Payment:

Close Calculator
North Georgia Mountain Real Estate North Georgia Real Estate
Licensed in North Carolina, Georgia & Tennessee

Toll Free: 1.888.253.6599
Business: 706.964.6470
Fax: 706.964.6033

Blue Ridge Ga Cabin Rentals
Luxury cabin rentals in the Blue Ridge North Georgia Mountains. Our cabins are located near the Ocoee River, Toccoa River, Lake Blue Ridge and many more area in the Blue Ridge Mountains.

North Georgia Cabin Rentals
Looking for a rustic cabin to rent in the Blue Ridge Mountains? Our rustic rental cabins are located in the north Georgia mountains and Tennessee.

Search Listings By Map MLS Number Form Listing Search Form Blue Ridge, GA Buying a Vacaion Home Thinking of Buying? Thinking of Selling? What to do Cabin Rentals Georgia Real Estate FacebookFacebook Keri Conner InstagramInstagram Cabin Rental YouTubeYou Tube Directions About Us Contact Us Listing Your Property
© Copyright 2026 RealEstateGeorgiaMountains.com.
Website Designed by Seattle Web Design